Stationsstraat 3 - Axel - € 595.000,- k.k.
Omschrijving
Karaktervol rijksmonument in het hart van Axel – waar historie en comfort samenkomen. Aan de rand van het gezellige centrum van Axel staat dit statige herenhuis, gebouwd rond 1917 en ontworpen in een rijke overgangsarchitectuur met vooral invloeden uit de Jugendstil. Het betreft een rijksmonument dat zijn monumentale uitstraling en unieke details volledig heeft behouden, en tegelijkertijd voldoet aan de eisen van modern wooncomfort. Dit...
Toon de volledige omschrijvingKaraktervol rijksmonument in het hart van Axel – waar historie en comfort samenkomen.
Aan de rand van het gezellige centrum van Axel staat dit statige herenhuis, gebouwd rond 1917 en ontworpen in een rijke overgangsarchitectuur met vooral invloeden uit de Jugendstil. Het betreft een rijksmonument dat zijn monumentale uitstraling en unieke details volledig heeft behouden, en tegelijkertijd voldoet aan de eisen van modern wooncomfort. Dit is een bijzonder thuis, vol karakter en sfeer.
Bijzonder en authentiek
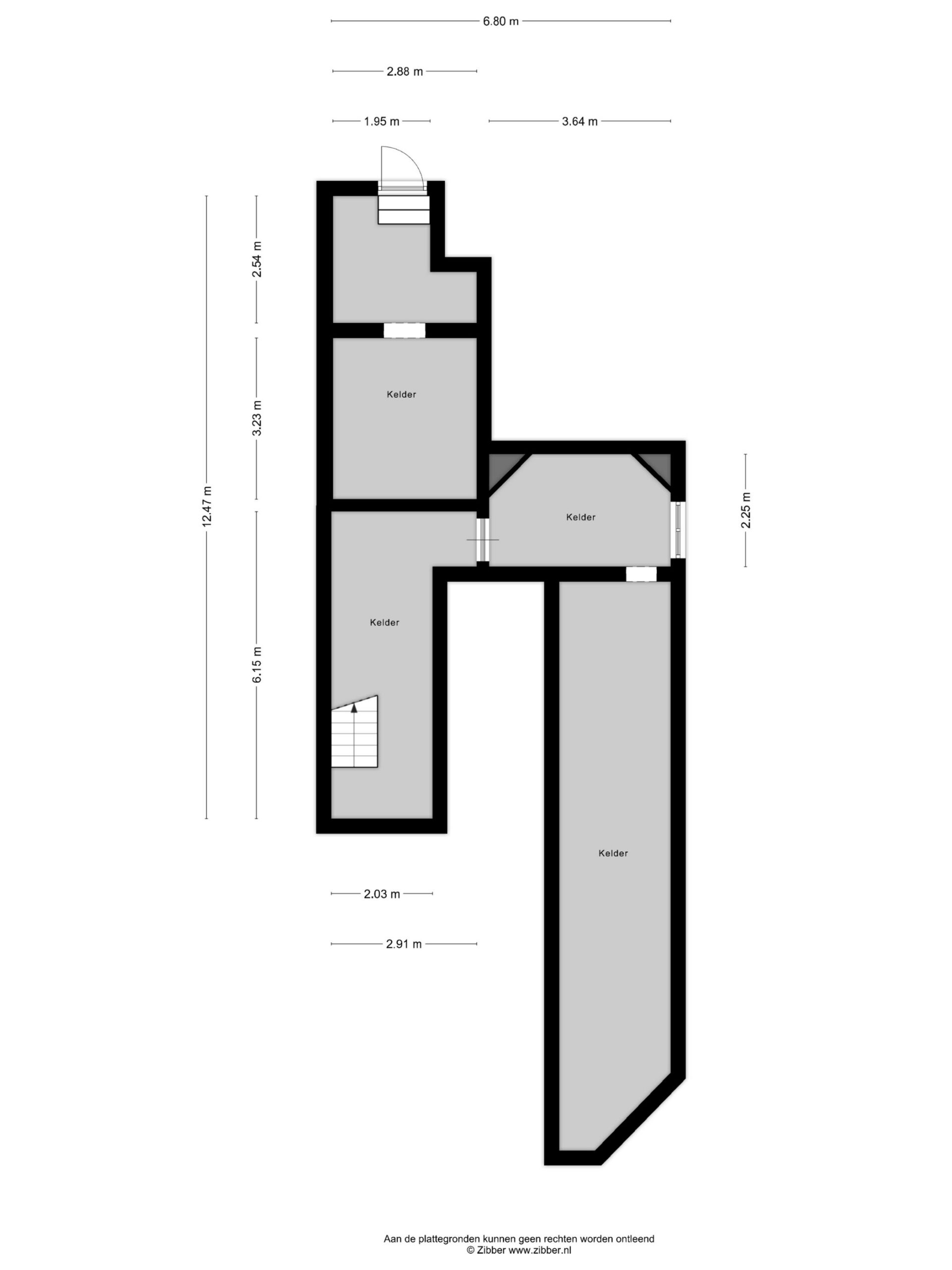
Dit halfvrijstaande herenhuis is deels onderkelderd (binnen- en buitenkelders), beschikt daarnaast over drie volwaardige woonlagen en een ruime zolderverdieping. Het markante zadeldak met gesmoorde ‘tuile du nord’-pannen, het decoratieve metselwerk, de authentieke erkers en de rijk versierde topgevel met uitgesneden houten details – inclusief draken- en vogelfiguren – maken dit pand tot een echte blikvanger. Zelfs de originele windwijzer op de nok is nog aanwezig.
Op deze woning kan worden geboden vanaf € 595.000,– k.k.
Indeling
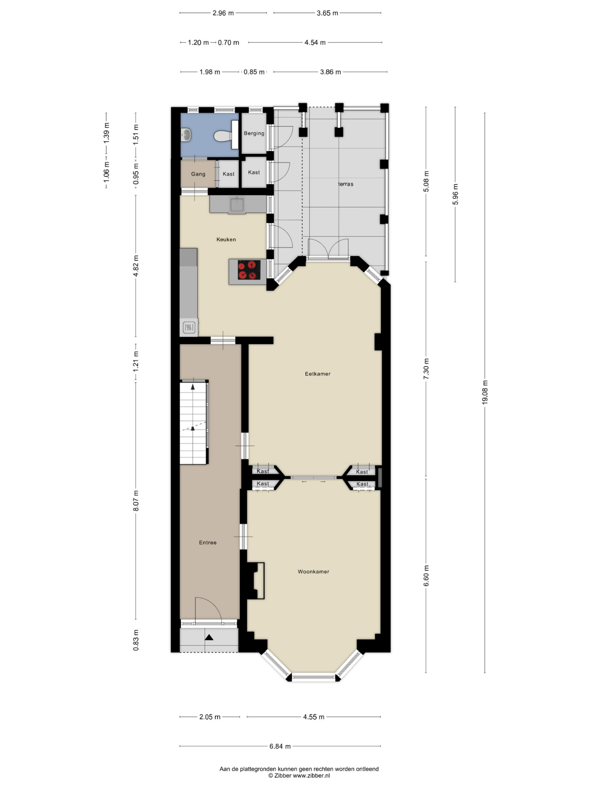
Begane grond
Via de statige entree met rondboogportiek betreedt u de indrukwekkende hal, waar originele lambrisering, een natuurstenen vloer en een monumentale bordestrap ware blikvangers zijn.
De sfeervolle woonkamer en suite is voorzien van een klassieke visgraat-parketvloer, originele marmeren schouw in Belgisch zwart en Doornik rood, die de open haard omgeeft met veilige liftdeur en voorzien is van een dubbelwandige metalotherm schoorsteenkaneel, met extra warmte via de begeleidende roosters in zowel kamer als badkamer op de eerste verdieping.
De schuifdeuren met rijkelijk gedecoreerd geëtst glas verdelen de ruimte in een comfortabel zitgedeelte met erker, en een ruime eetkamer, voorzien van inbouwkasten aan beide zijden. De openslaande tuindeuren leiden naar een verhoogd tuinterras, waarop ook de keuken aansluit.
Dit verhoogde tuinterras heeft een monumentaal overstek, karaktervol en praktisch, waaronder zich ook de twee buitenkasten bevinden. Warme stijlvolle vertrekken kortom, die u uitnodigen tot ontspannen binnen én buiten.
In open verbinding met de eetkamer vindt u de fraaie Tinello-keuken, met natuurstenen werkbladen, kookeiland en hoogwaardige inbouwapparatuur.
Aansluitend een portaal met toegang tot de wasruimte en een zeer ruim toilet. Vanuit de hal is ook de praktische binnenkelder bereikbaar, ideaal voor bijvoorbeeld wijnopslag. In die binnenkelder vindt u ook de originele Lipskluis.
Eerste verdieping
Via de originele essenhouten trap met borduren en wrongstukken, passeert u het prachtige glas-in-lood raam dat de overloop siert. De royale hoofdslaapkamer is licht en sfeervol, voorzien van shutters en ingebouwde kledingkast met schuifdeuren. Daarop sluit aan de bijzonder ruime badkamer met ligbad, inloopdouche, dubbele wastafel, bidet en een tweede toilet. De badkamer heeft tevens een charmant balkon. De tweede slaapkamer met inbouw kastgedeelte heeft een eigen toegang via de overloop, en geeft uit naar de badkamer.
Tweede verdieping
Op deze verdieping bevinden zich nog twee extra volwaardige slaapkamers, elk met eigen wastafel. De slaapkamer aan de voorzijde valt op door zijn authentieke raampartijen en bijzondere details.
De slaapkamer aan de achterzijde heeft Veluxramen met zonwering.
Op deze tweede verdieping bevindt zich het derde toilet, en bovendien een aparte werkkamer.
Zolder
Via een vaste trap bereikt u de bergzolder, toegankelijk vanuit de werkkamer – ideaal als extra bergruimte of voor verdere uitbreiding.
Buitenzijde
De fraai aangelegde achtertuin op het zuidwesten is een ware oase van rust, met beukhagen bloemborders, meerdere terrassen, een prieel, een sierlijke vijver en een houten tuinhuisje. Hier geniet u van optimale privacy en een groen decor.
Een trap verbindt het verhoogde tuinterras met de tuin. Naast die trap heeft u ook toegang tot de ruime buitenkelder.
Via de gang lopend naast de woning vanaf de tuin naar de afsluitbare poort aan de voorzijde heeft u een extra uitgang voor bijvoorbeeld fietsen.
Kenmerken op een rij:
o Rijksmonument met rijke historische architectuur, met vooral de hal als blikvanger.
o Originele details zoals glas-in-lood, stucplafonds, schuifdeuren, marmeren schouw en paneeldeuren.
o Royale woonkamer en-suite.
o Luxe keuken met kookeiland.
o Vier slaapkamers + aparte werkkamer (eventueel vijfde slaapkamer).
o Ruime badkamer, en daarnaast twee separate toiletten.
o Binnen- en buitenkelders, en ruime bergzolder.
o Prachtige, zonnige tuin op het zuidwesten.
o Gelegen op loopafstand van centrum, scholen en uitvalswegen.
o Ruime gratis parkeergelegenheid in de straat.
Een voor Zeeuws-Vlaanderen unieke woning, ideaal voor de liefhebber die op zoek is naar een authentiek thuis met een ziel. Een droom om in te wonen.
Wilt u zelf ervaren hoe bijzonder dit herenhuis is? Neem dan snel contact op voor een bezichtiging via: Van Hoeve Makelaars – tel. 0115-62 13 00
Kenmerken
Overdracht
- StatusVerkocht onder voorbehoud
- Koopprijs€ 595.000,- k.k.
- AanvaardingIn overleg
- Permanente bewoningJa
Bouwvorm
- Soort objectWoonhuis
- Soort woningHerenhuis
- Type woningHalfvrijstaande woning
- Kwaliteit woningFraai aangelegd
- Bouwjaar1917
- BouwvormBestaande bouw
Oppervlakte en inhoud
- Woonoppervlakte300 m2
- Perceeloppervlakte300 m2
- Inhoud1.000 m2
- Overige inpandige ruimte0 m2
- Externe bergruimte0 m2
- Gebouwgebonden buitenruimte0 m2
Indeling
- Aantal kamers7
- Aantal slaapkamers4
- Aantal badkamers1
- Woonlaag0
Energie
- IsolatievormenDakisolatie, Dubbelglas
- Soorten verwarmingCV ketel, Open haard
- Soorten warm waterCV ketel
- CV ketel typeHR combi Nefit
- CV ketel bouwjaar2001
- CV ketel eigendomEigendom
- CV ketel brandstofGas
Buitenruimte
- TuintypenAchtertuin
- KwaliteitFraai aangelegd
- Totale oppervlakte128 m2
- AchteromJa
Bergruimte
- SoortVrijstaand hout
Parkeergelegenheid
N.v.t.Dak
- Dak typeZadeldak
- Dak materialenPannen
Overige
- WaarderingUitstekend
- WaarderingGoed
- Huidig gebruikWoonruimte
- Huidige bestemmingWoonruimte