Eglantiersweg 3 - Axel - € 787.000,- v.o.n.
Omschrijving
Wonen in Magrette, landelijk gelegen tussen Terneuzen en Axel. Vrijstaande woning op een ruim kavel van 760 m2 met in de achtertuin vrij uitzicht over de landerijen. Deze woning is standaard voorzien van 12 zonnepanelen, is duurzaam gebouwd en garandeert u minimale kosten aan elektriciteit. Deze woning heeft een EPC waarde van 0,37 met energielabel A+++. Voordelen van deze woning is de locatie, gelegen aan...
Toon de volledige omschrijvingWonen in Magrette, landelijk gelegen tussen Terneuzen en Axel.
Vrijstaande woning op een ruim kavel van 760 m2 met in de achtertuin vrij uitzicht over de landerijen.
Deze woning is standaard voorzien van 12 zonnepanelen, is duurzaam gebouwd en garandeert u minimale kosten aan elektriciteit.
Deze woning heeft een EPC waarde van 0,37 met energielabel A+++.
Voordelen van deze woning is de locatie, gelegen aan de westelijke kant van Magrette met uitzicht over de polder, ruimte, rust, grootte kavel en privacy, omgeven door veel groen, kortom een zeer plezierige woonomgeving waar u dagelijks tot rust kunt komen.
De achtertuin is gesitueerd op het zuidwesten, zodat maximaal genot van zon is gegarandeerd.
Het buurtschap Magrette is gelegen tussen Axel en Terneuzen, zodat u alle voorzieningen op circa 4 km zowel in Axel als in Terneuzen aantreft.
De bouw vangt aan na de aankoop in overleg met de aannemer.
Bijzondere kenmerken van deze woningen zijn:
– Ruime kavels
– Geen buren aan voorzijde en achterzijde van de woning waardoor maximale rust en privacy
– Landelijke ligging aangrenzend aan de polder
– Rustige woonomgeving
– Kwalitatief zeer goede bouw met gebruik gemaakt van goede bouwmaterialen
Indeling:
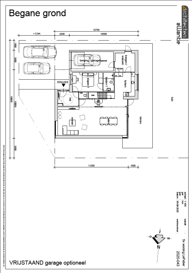
Begane grond:
-Hal
-Meterkast
-Woonkamer
-Keuken
-Slaapkamer
-Badkamer
-Toilet
-Bijkeuken
-Berging/garage
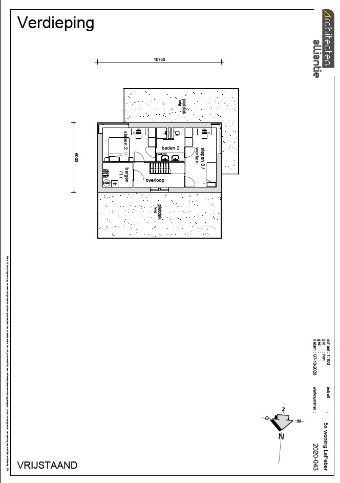
1ste verdieping:
-Overloop
-2 Slaapkamers
-Badkamer
-Technische ruimte
Technische gegevens oppervlaktes:
Bebouwd oppervlakte : 137,5m2
BVO (bruto vloeroppervlakte) : 208,75m2
Bruto inhoud : 650,0m3
GO (gebruiksoppervlakte) : 151,0m2
Wilt u in alle rust en luxe wonen dan is dit uw unieke kans en ontdek de mogelijkheden van wonen in Magrette.
Video Nieuwe Eglantier Axel:
Zie onze website, www.vanhoevemakelaars.nl
Kenmerken
Overdracht
- StatusBeschikbaar
- Koopprijs€ 787.000,- v.o.n.
- AanvaardingIn overleg
- Servicekosten per maand€ 0,-
- Permanente bewoningJa
Bouwvorm
- Soort objectWoonhuis
- Soort woningEengezinswoning
- Type woningVrijstaande woning
- Kwaliteit woningNormaal
- Bouwjaar2025
- BouwvormNieuwbouw
- LiggingenAan rustige weg, Vrij uitzicht, Landelijk gelegen
Oppervlakte en inhoud
- Woonoppervlakte151 m2
- Perceeloppervlakte760 m2
- Inhoud650 m2
- Overige inpandige ruimte57 m2
- Externe bergruimte21 m2
- Gebouwgebonden buitenruimte0 m2
Indeling
- Aantal kamers4
- Aantal slaapkamers3
- Aantal badkamers1
Energie
- EnergieklasseA+++
- IsolatievormenVolledig geïsoleerd, Driedubbel glas
- Soorten verwarmingVloerverwarming geheel, Electrische verwarming, Warmtepomp
- Soorten warm waterElektrische boiler eigendom
Buitenruimte
- TuintypenAchtertuin
- KwaliteitNormaal
- Totale oppervlakte500 m2
- AchteromJa
Bergruimte
N.v.t.Parkeergelegenheid
- Parkeer faciliteitenOp eigen terrein
Dak
- Dak typePlat dak
- Dak materialenBitumineuze Dakbedekking
Overige
- WaarderingUitstekend
- WaarderingUitstekend
- Huidig gebruikWoonruimte
- Huidige bestemmingWoonruimte