Willem Alexanderlaan 43 - Terneuzen - € 545.000,-
Omschrijving
Tijdens Open Huizendag 28 maart 2026 van 11:00 uur tot 15:00 uur bent u welkom de villa in aanbouw te bezoeken! Appartement Willem Alexanderlaan 43 begane grond Inrichting - Ruime woonkamer met open keukenruimte - Luxe badkamer met toilet, douche en bad - Separaat gastentoilet - Twee slaapkamersm waarvan één met inloopkast Optie: stalen dubbele deuren tussen slaapkamer 1 en keuken - Werkkamer/hobbyruimte - Ruime...
Toon de volledige omschrijvingTijdens Open Huizendag 28 maart 2026 van 11:00 uur tot 15:00 uur bent u welkom de villa in aanbouw te bezoeken!
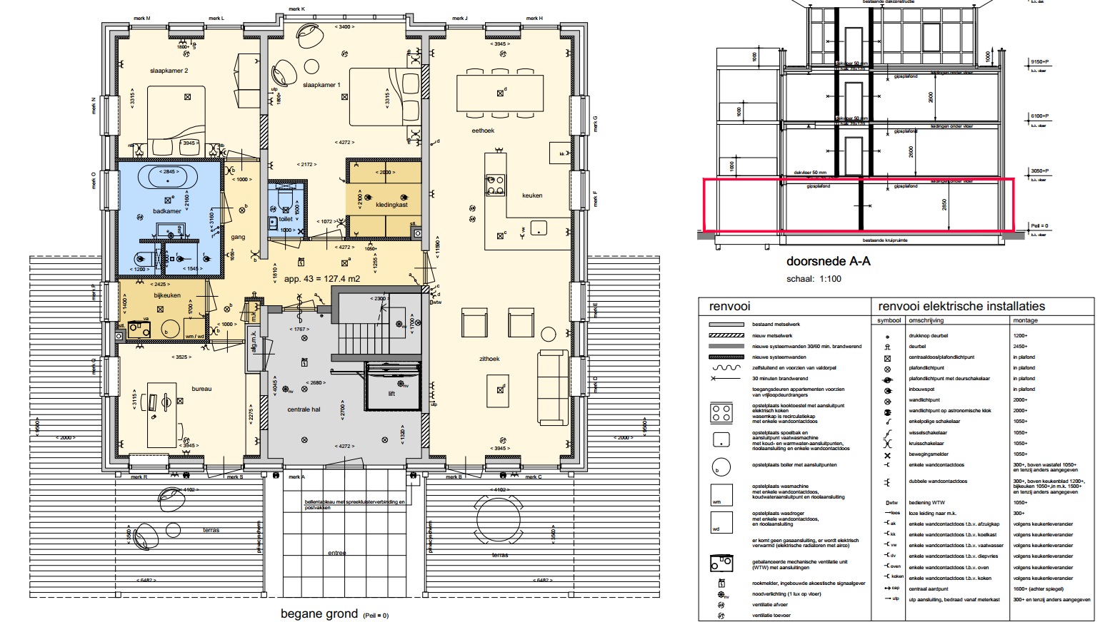
Appartement Willem Alexanderlaan 43 begane grond
Inrichting
– Ruime woonkamer met open keukenruimte
– Luxe badkamer met toilet, douche en bad
– Separaat gastentoilet
– Twee slaapkamersm waarvan één met inloopkast
Optie: stalen dubbele deuren tussen slaapkamer 1 en keuken
– Werkkamer/hobbyruimte
– Ruime bijkeuken
– Energie-efficiënte verwarming en koeling met airco’s
– Twee privé tuinterrassen
Optie: dubbele openslaande tuindeuren met extra privéterras
Optie: extra privétuin rondom
– Eigen parkeerplaats
Optie: ruime garage/berging
Optie: zonnepanelen op garage/berging
Optie: laadpaal bij parking en/of in garage
Indeling
– Woonkamer en open keuken 47,39m²
– Toilet 1,50m²
– Slaapkamer 1 18,79m²
– Inbouwkast 4,20m²
– Badkamer 9,26m²
– Slaapkamer 2 13,70m²
– Bureau 12,54m²
– Bijkeuken 4,18m²
– Buitenruimte – 2 terrassen 2×34,63m²
Kenmerken
Overdracht
- StatusBeschikbaar
- Koopprijs€ 545.000,-
- KoopconditieKosten koper
Bouwvorm
- Soort objectAppartement
- Soort appartementBenedenwoning
- Bouwjaar2026
- BouwvormNieuwbouw
- LiggingenAan rustige weg
Oppervlakte en inhoud
- Woonoppervlakte127 m2
- Inhoud362 m3
- Oppervlakte externe bergruimte0 m2
- Gebruiksoppervlakte overige functies10 m2
- Oppervlakte69 m2
Indeling
- Aantal kamers4
- Aantal slaapkamers2
- Aantal badkamers1
- Woonlaag1
- VoorzieningenLift, Airconditioning
Energie
N.v.t.Buitenruimte
- TuintypenZijtuin, Zonneterras
Bergruimte
N.v.t.Parkeergelegenheid
- SoortenGeen garage
Dak
N.v.t.Overige
- Permanente bewoningJa
- WaarderingGoed tot uitstekend
- WaarderingGoed tot uitstekend