Half vrijstaand 3A - Axel - € 556.500,-
Omschrijving
Wonen in Magrette, landelijk gelegen tussen Terneuzen en Axel. Eglantiersweg 3a. 2 onder 1-kap woning op 595 m² eigen grond. Deze woning is standaard voorzien van 10 zonnepanelen, is duurzaam gebouwd en garandeert u minimale kosten aan elektriciteit. Deze woning heeft een EPC waarde van 0,40 met een energielabel A+++ Voordelen van deze woning is de locatie, gelegen aan de westelijke kant van Magrette met...
Toon de volledige omschrijvingWonen in Magrette, landelijk gelegen tussen Terneuzen en Axel. Eglantiersweg 3a.
2 onder 1-kap woning op 595 m² eigen grond.
Deze woning is standaard voorzien van 10 zonnepanelen, is duurzaam gebouwd en garandeert u minimale kosten aan elektriciteit.
Deze woning heeft een EPC waarde van 0,40 met een energielabel A+++
Voordelen van deze woning is de locatie, gelegen aan de westelijke kant van Magrette met uitzicht over de polder, ruimte, rust, grootte kavel en privacy, omgeven door veel groen, kortom een zeer plezierige woonomgeving waar u dagelijks tot rust kunt komen.
De achtertuin is gesitueerd op het zuidwesten, zodat maximaal genot van zon is gegarandeerd.
Het buurtschap Magrette is gelegen tussen Axel en Terneuzen, zodat u alle voorzieningen op circa 4 km zowel in Axel als in Terneuzen aantreft.
De bouw vangt aan na de aankoop in overleg met de aannemer.
Bijzondere kenmerken van deze woningen zijn:
– Ruime kavels
– Geen buren aan voorzijde en achterzijde van de woning waardoor maximale rust en privacy
– Landelijke ligging aangrenzend aan de polder
– Rustige woonomgeving
– Kwalitatief hoogwaardige bouw
Technische gegevens oppervlaktes:
Bebouwd oppervlakte : 103,0m2
BVO (bruto vloeroppervlakte) : 171,3m2
Bruto inhoud : 569,0m3
GO (gebruiksoppervlakte) : 126,0m2
Technische gegevens oppervlaktes:
Bebouwd oppervlakte : 103,0m2
BVO (bruto vloeroppervlakte) : 171,3m2
Bruto inhoud : 569,0m3
GO (gebruiksoppervlakte) : 126,0m2
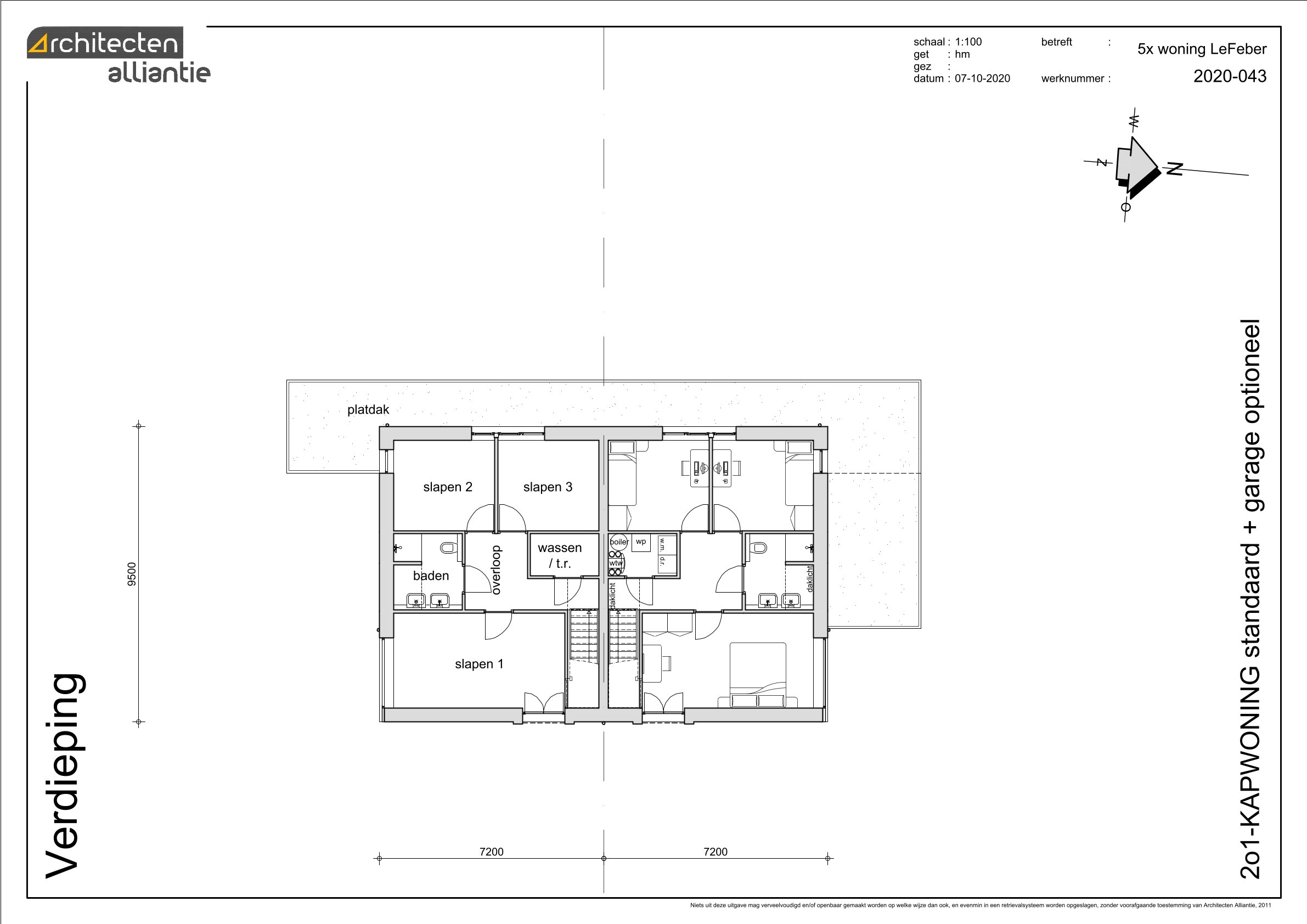
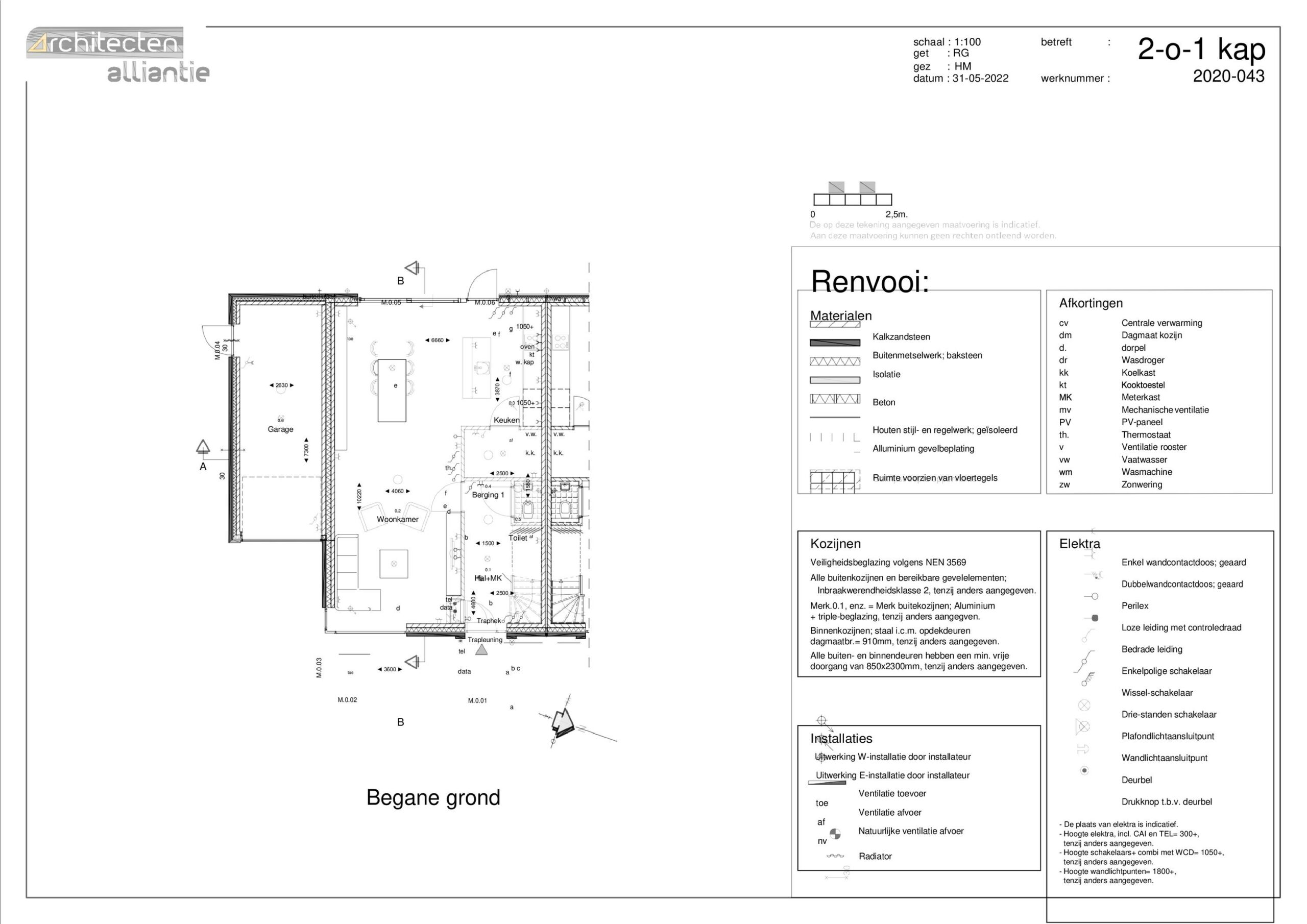
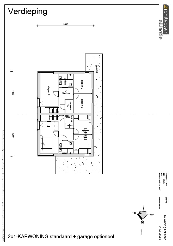
Indeling:
Begane grond:
-Hal
-Meterkast
-Woonkamer
-Keuken
-Berging/ bijkeuken/ wasruimte
-Toilet
-Garage
1ste verdieping:
-Overloop
-3 Slaapkamers
-Badkamer
-Technische ruimte/ wasruimte
Wilt u in alle rust en luxe wonen dan is dit uw unieke kans en ontdek de mogelijkheden van wonen in Magrette.
Video Nieuwe Eglantier Axel:
Zie ons website, www.vanhoevemakelaars.nl
Kenmerken
Overdracht
- StatusBeschikbaar
- Koopprijs€ 556.500,-
- KoopconditieVrij op naam
Bouwvorm
- Soort objectWoonhuis
- Soort woningEengezinswoning
- Type woningHalfvrijstaande woning
- Bouwjaar2022
- BouwvormNieuwbouw
- LiggingenAan rustige weg, Vrij uitzicht
Oppervlakte en inhoud
- Woonoppervlakte595 m2
- Inhoud569 m3
- Oppervlakte externe bergruimte21 m2
- Gebruiksoppervlakte overige functies45 m2
- Oppervlakte325 m2
- Oppervlakte451 m2
Indeling
- Aantal kamers4
- Aantal slaapkamers3
- Aantal badkamers1
- VoorzieningenMechanische ventilatie, TV kabel, Zonnecollectoren, Frans balkon, Zonnepanelen
Energie
- EnergieklasseA+++
- Energielabel einddatum28 november 2024
- IsolatievormenDakisolatie, Muurisolatie, Vloerisolatie, Volledig geïsoleerd, Driedubbel glas
- Soorten verwarmingWarmtepomp
- Soorten warm waterZonnecollectoren
Buitenruimte
- TuintypenAchtertuin
Bergruimte
N.v.t.Parkeergelegenheid
- SoortenAangebouwd steen
- ParkeerfaciliteitenOp eigen terrein
- Parkeercapaciteit2
Dak
- Dak typePlat dak
Overige
- Permanente bewoningJa
- WaarderingUitstekend
- WaarderingUitstekend